
麹町
111.09
㎡
3LDK
36,990
万円
物件概要
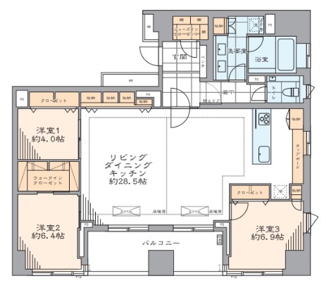
「麹町」駅より徒歩4分に佇む「パークハウス平河町」です。お部屋は13階に位置します。
約28.5帖のリビングは南東向きで、窓から差し込む陽射しが室内を明るく包み込みます。また、床暖房が足元を温め、広さと心地よさを兼ね備えた贅沢な空間です。田中工藝製のオリジナルキッチンは、カップボードや窓を備え、機能性とデザイン性を両立。洗面室はダブルボウルの洗面台を採用し、浴室は窓付きで開放感があります。奥行きのあるバルコニーからは広がる空を望み、日常に安らぎをプラスしてくれるでしょう。




約28.5帖のリビングは南東向きで、窓から差し込む光が室内を明るく包み込みます。床暖房を完備しており、寒い季節でも足元からじんわりと暖かさを感じられるのが魅力です。広さを活かして家具の配置もしやすく、ご家族やゲストとの時間をより豊かにしてくれるでしょう。


田中工藝製のキッチンは、機能性とデザイン性を兼ね備えた仕上がり。大容量のカップボードも設置されており、食器や調理器具の収納に便利です。さらに窓が付いているため、自然光や風を取り込みながら気持ちよく調理を楽しめます。



洋室には窓があり、心地よい光と風を取り込めます。さらにウォークインクローゼットを備えているため、衣類や小物をすっきりと収納でき、居室を広々とお使いいただけます。


奥行のあるバルコニーは、ゆったりと腰を下ろせる広さが魅力。空を眺めながら過ごすひとときは、日常に穏やかな癒しをもたらしてくれます。開放感あふれる景色が、暮らしに彩りを添えてくれるでしょう。


高級感が漂う玄関は、ゆとりある広さがあり、訪れる人を上品に迎え入れます。シューズインクローゼットを備えているため、靴やアウトドア用品もすっきりと収まり、整った印象を保てる仕様。住まいの第一印象をより一層引き立ててくれるでしょう。



田中工藝製のオリジナルデザイン洗面台は、洗練された佇まいが魅力。ダブルボウル仕様のため、忙しい朝の身支度もスムーズに行えます。浴室はゆとりある1620サイズで、窓から自然光や風を取り込める設計。日々のバスタイムを上質なひとときへと変えてくれます。



2007年9月築、総戸数55戸、「麹町」駅より徒歩4分の立地です。上質な雰囲気が漂うエントランスは、住まう人や訪れる人を洗練された印象で迎え入れます。宅配ボックスも備わっており、不在時の受け取りにも対応。安心と利便性を兼ね備えた設えとなっています。周辺には、コンビニやスーパーが徒歩3分圏内にありお買い物にも便利です。小中学校も近く教育機関も充実しています。
住所
東京都千代田区平河町
GoogleMap
アクセス
「麹町」駅 徒歩4分
「半蔵門」駅 徒歩4分
「永田町」駅 徒歩6分
マンション名
パークハウス平河町
ぱーくはうすひらかわちょう
価格
36,990
万円
間取り
3LDK
専有面積
111.09
㎡
バルコニー面積
11.89
㎡
築年月
2007年9月
所在階
13階
構造
RC14階地下1階建
総戸数
55戸
管理費
39,430円/月
修繕積立金
20,000円/月
駒場パーク・ホームズ
陽光と機能性を備えた穏やかな住まい
神泉
71.27
㎡
3LDK
15,990
万円
ガレリアコルテ六番町
光とやさしさに包まれるナチュラルレジデンス
四ツ谷
81.36
㎡
3LDK
26,980
万円
フォルム内藤町
新宿御苑ビューを愉しむ、ゆとりの上質空間
新宿御苑前
101.31
㎡
3LDK
39,990
万円
内見動画あり
クレッセント目黒青葉台
毎日を快適に包み込む安心と寛ぎの邸宅
中目黒
86.18
㎡
3LDK
21,490
万円
エス・バイ・エルマンション信濃町
光と風が通る快適リビングの住まい
四ツ谷
69.02
㎡
2LDK+S
12,280
万円
大崎ウエストシティタワーズ
都心を一望、ホテルライクなタワーライフ
大崎
80.8
㎡
3LDK
25,980
万円
ヴァリウス代沢
都会の静寂を享受する低層プレミアムレジデンス
池ノ上
98.03
㎡
3LDK
19,980
万円
サンウッド広尾
東京タワーと緑を望む品格ある住まい
広尾
84.16
㎡
3LDK
41,800
万円
物件をもっとみる
リノベ物件の購入と暮らしのヒント
買ってはいけないリノベマンションの特徴|売却を視野に入れた場合の特徴も紹介
物件購入の基礎知識
資産性
マンションが資産にならない本当の理由|原因はマンションだけじゃない?
物件購入の基礎知識
資産性
外国人が日本で不動産を購入するときの注意点|必要な事前準備も紹介
物件購入の基礎知識
1億円マンションの購入時に必要な費用|費用を抑えるポイントも解説
物件購入の基礎知識
2億円リノベマンション購入でかかる固定資産税・維持費などまとめて紹介
物件購入の基礎知識
リノベーション
個人事業主が住宅ローンを組むためのコツ|審査に落ちるケースや年収条件も解説
物件購入の基礎知識
コラム記事をもっとみる
