この物件は「ご成約済み」です。
広尾
80.01
㎡
3LDK
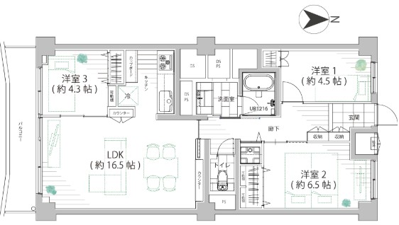
「恵比寿」駅より徒歩8分に佇む「広尾マンションB棟」です。お部屋は9階に位置します。
南向きの明るい16.5帖のリビングは、木目調フローリングが映える心地よい空間です。人造大理石カウンターや食洗機・浄水器付きの機能的なキッチンも魅力。収納・窓付きの洋室、眺望の良いバルコニー、木目調パネルの浴室など、快適な暮らしを支える設備が整っています。恵比寿・代官山が徒歩圏内の便利な立地で、都心を満喫できる住まいです。




16.5帖のゆったりとした空間に、南向きの大きな窓から光がたっぷり差し込みます。木目調のフローリングがあたたかみを与え、家族の時間を心地よく演出してくれるでしょう。


キッチンには上質な人造大理石カウンターを採用し、毎日の料理が楽しくなる上品な雰囲気に。ビルトイン食洗機と浄水器付き水栓も備え、機能性と美しさを兼ね備えた使いやすい仕様です。



採光窓を備えた明るい洋室には、使い勝手の良い収納スペースも完備。プライベート空間としても、趣味や在宅ワーク用のスペースとしても快適にお使いいただけます。


南向きのバルコニーからは、開放的な眺望が広がります。9階ならではの心地よい陽当たりと風通しで、毎日の暮らしにゆとりと明るさをプラスしてくれます。



白を基調とした洗面台は、広々としたカウンター付きで使いやすさ抜群。浴室には木目調のパネルを採用し、ワイドミラーが空間に奥行きを与え、ホテルライクな落ち着きと上質感を演出します。

1970年7月月築、総戸数100戸、「恵比寿」駅より徒歩8分の立地です。ヴィンテージの風格漂う外観が魅力的。人気の恵比寿駅から徒歩圏内、渋谷・代官山も生活圏の好立地。恵比寿ガーデンプレイスや広尾エリアも身近に、都心ならではの洗練された暮らしを楽しめます。
住所
東京都渋谷区広尾
GoogleMap
アクセス
「恵比寿」駅 徒歩8分
「広尾」駅 徒歩9分
「代官山」駅 徒歩16分
マンション名
広尾マンションB棟
ひろおまんしょんBとう
間取り
3LDK
専有面積
80.01
㎡
バルコニー面積
9.45
㎡
築年月
1970年7月
所在階
9階
構造
SRC12階建
総戸数
100戸
駐車場
空き有
敷地内(20,000円~30,000円/月)
ペット
規約有
管理費
17,014円/月
修繕積立金
19,455円/月
駒場パーク・ホームズ
陽光と機能性を備えた穏やかな住まい
神泉
71.27
㎡
3LDK
15,990
万円
ガレリアコルテ六番町
光とやさしさに包まれるナチュラルレジデンス
四ツ谷
81.36
㎡
3LDK
26,980
万円
フォルム内藤町
新宿御苑ビューを愉しむ、ゆとりの上質空間
新宿御苑前
101.31
㎡
3LDK
39,990
万円
内見動画あり
クレッセント目黒青葉台
毎日を快適に包み込む安心と寛ぎの邸宅
中目黒
86.18
㎡
3LDK
21,490
万円
エス・バイ・エルマンション信濃町
光と風が通る快適リビングの住まい
四ツ谷
69.02
㎡
2LDK+S
12,280
万円
大崎ウエストシティタワーズ
都心を一望、ホテルライクなタワーライフ
大崎
80.8
㎡
3LDK
25,980
万円
ヴァリウス代沢
都会の静寂を享受する低層プレミアムレジデンス
池ノ上
98.03
㎡
3LDK
19,980
万円
サンウッド広尾
東京タワーと緑を望む品格ある住まい
広尾
84.16
㎡
3LDK
41,800
万円
物件をもっとみる
リノベ物件の購入と暮らしのヒント
買ってはいけないリノベマンションの特徴|売却を視野に入れた場合の特徴も紹介
物件購入の基礎知識
資産性
マンションが資産にならない本当の理由|原因はマンションだけじゃない?
物件購入の基礎知識
資産性
外国人が日本で不動産を購入するときの注意点|必要な事前準備も紹介
物件購入の基礎知識
1億円マンションの購入時に必要な費用|費用を抑えるポイントも解説
物件購入の基礎知識
2億円リノベマンション購入でかかる固定資産税・維持費などまとめて紹介
物件購入の基礎知識
リノベーション
個人事業主が住宅ローンを組むためのコツ|審査に落ちるケースや年収条件も解説
物件購入の基礎知識
コラム記事をもっとみる
