この物件は「ご成約済み」です。
代々木上原
75.09
㎡
2LDK
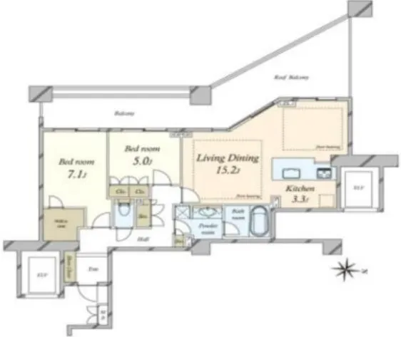
「代々木上原」駅より徒歩10分に佇む「エスタードヒルズ代々木西原」です。お部屋は最上階の7階に位置します。
LDKは18.5帖の広さがあり、温もり溢れる木目調のフローリングとグレーのクロスが穏やかな空間を演出しています。 外からはたくさんの自然光が入り込み、窓を開ければ爽やかな風がリビングを通り抜け穏やかな時間を過ごせるでしょう。開放感のあるキッチンは青空や緑を望みながら料理ができます。また、ルーフバルコニー付きのため椅子を置いて、読書やティータイムにもおすすめです。




約18.5帖のLDKは窓から陽光が降り注ぐ明るい空間。室内から緑や空を望み安らぎのある時間をお過ごしいただけます。フローリングには床暖房が設置されているので、年中快適です。


ベージュのパネルを使用した落ち着いた雰囲気が漂うキッチンです。また、ビルトイン食器洗浄機搭載のため場所を取らず、忙しい朝も快適です。開放感のあるキッチンは、リビングにいる家族と会話を楽しみながら作業を行えます。


リビングから離れた洋室は約7.1帖の広さがあり、ウォークインクローゼットを備えているのでキャリーケースなど大きな荷物の収納に便利です。約5.0帖の洋室は子ども部屋やワークスペースとしてもご利用いただけます。


開放感のあるルーフバルコニーは陽当たり良好です。西向きのため夕方まで日差しが入り込み、洗濯物もスッキリと乾くでしょう。簡易テーブルや椅子を置いて、遠くの空を眺めながらリフレッシュタイムにもおすすめ。

清潔感のある玄関には人感センサーのライトが付いているため、夜の帰宅時や手が塞がっている時に足元を優しく照らしてくれるので便利です。また、天井までの高さのシューズクローゼットを備えており、靴をしまい美しい状態の玄関を保てます。



洗面台の三面鏡の裏と洗面下には収納スペースがあるので、散らばりがちなアメニティを収納でき洗面周りをスッキリと保てます。浴室はベージュのパネルが癒しの空間を演出。湯舟に浸りリラックスしたバスタイムをお過ごしください。



2002年5月築、総戸数49戸、「代々木上原」駅より徒歩10分の立地です。外観はオフホワイトのタイル貼りが印象的。エントランス両サイドには手入れの行き届いた植栽があり目にも心にも優しいです。周辺には中学校や郵便局、スポーツセンターがあります。代々木公園も徒歩圏内のため、休日のお散歩やジョギングコースとしてもご利用いただけます。
住所
東京都渋谷区西原
GoogleMap
アクセス
「代々木上原」駅 徒歩10分
「幡ヶ谷」駅 徒歩11分
マンション名
エスタードヒルズ代々木西原
えすたーどひるずよよぎにしはら
間取り
2LDK
専有面積
75.09
㎡
バルコニー面積
20
㎡
築年月
2002年5月
所在階
7階
構造
RC7階地下1階建
総戸数
49戸
ペット
可(細則有)
管理費
11,200円/月
修繕積立金
19,100円/月
備考
ルーフバルコニー:9.49m2
駒場パーク・ホームズ
陽光と機能性を備えた穏やかな住まい
神泉
71.27
㎡
3LDK
15,990
万円
ガレリアコルテ六番町
光とやさしさに包まれるナチュラルレジデンス
四ツ谷
81.36
㎡
3LDK
26,980
万円
フォルム内藤町
新宿御苑ビューを愉しむ、ゆとりの上質空間
新宿御苑前
101.31
㎡
3LDK
39,990
万円
内見動画あり
クレッセント目黒青葉台
毎日を快適に包み込む安心と寛ぎの邸宅
中目黒
86.18
㎡
3LDK
21,490
万円
エス・バイ・エルマンション信濃町
光と風が通る快適リビングの住まい
四ツ谷
69.02
㎡
2LDK+S
12,280
万円
大崎ウエストシティタワーズ
都心を一望、ホテルライクなタワーライフ
大崎
80.8
㎡
3LDK
25,980
万円
ヴァリウス代沢
都会の静寂を享受する低層プレミアムレジデンス
池ノ上
98.03
㎡
3LDK
19,980
万円
サンウッド広尾
東京タワーと緑を望む品格ある住まい
広尾
84.16
㎡
3LDK
41,800
万円
物件をもっとみる
リノベ物件の購入と暮らしのヒント
買ってはいけないリノベマンションの特徴|売却を視野に入れた場合の特徴も紹介
物件購入の基礎知識
資産性
マンションが資産にならない本当の理由|原因はマンションだけじゃない?
物件購入の基礎知識
資産性
外国人が日本で不動産を購入するときの注意点|必要な事前準備も紹介
物件購入の基礎知識
1億円マンションの購入時に必要な費用|費用を抑えるポイントも解説
物件購入の基礎知識
2億円リノベマンション購入でかかる固定資産税・維持費などまとめて紹介
物件購入の基礎知識
リノベーション
個人事業主が住宅ローンを組むためのコツ|審査に落ちるケースや年収条件も解説
物件購入の基礎知識
コラム記事をもっとみる
