
用賀
229.7
㎡
4LDK
46,000
万円
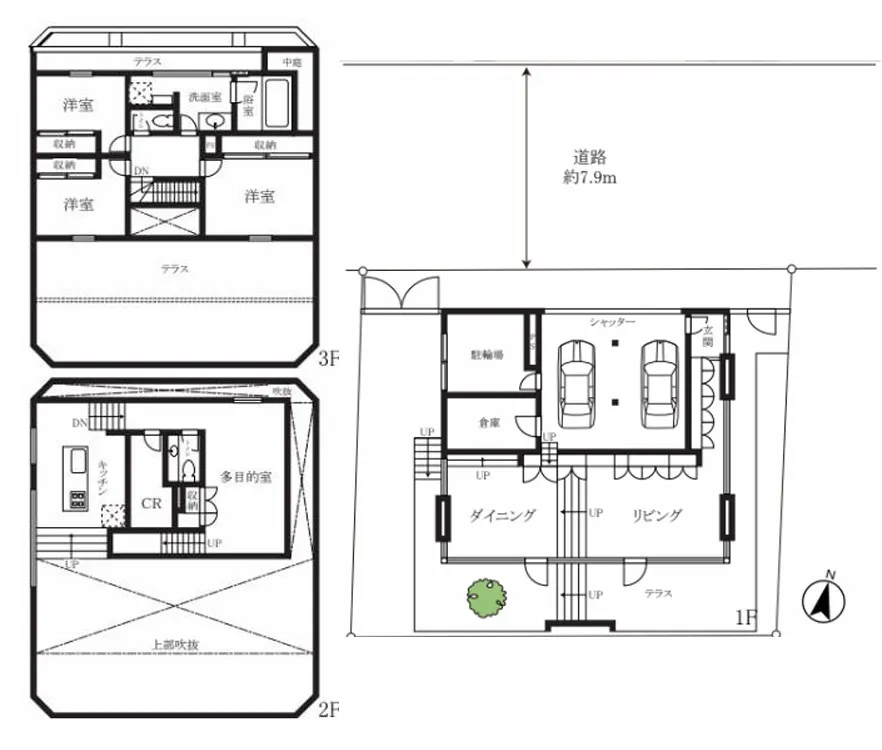
物件概要
「用賀」駅より徒歩9分に佇む戸建の物件です。白を基調としデザイン性の高いこだわりある住まい。
リビングはイタリアからとりよせたタイル張りで高級感が溢れます。また、吹き抜けの天井は開放感があり外から居室に光が降り注ぎ明るいです。プライベートガーデンテラスがあり、緑を眺め風を感じながら読書やティータイムを楽しむこともできます。上質な空間で至高な時間をお過ごしいただけます。場所などの詳細が知りたい方はお問い合わせください。




ガラス張りの開放的なリビングは、外から自然光が入り明るく照らしてくれます。また、天井高が約5,000mmあるので広い空間を感じられゆったりとした時間を過ごせるでしょう。



プライベートガーデンテラスでは椅子やテーブルを置いて、1人の時間を優雅に過ごしたり、友人や家族と一緒にパーティーを楽しむこともできます。また、青空を眺めリフレッシュタイムにもおすすめです。


高級感溢れる大理石調の洗面台です。カウンター部分も広く、入浴後もゆったりとした時間を過ごせるでしょう。バスルームはガラス張りで開放感があります。テレビが付いているので、湯舟に浸り1日の疲れを癒せそうです。
「用賀」駅から徒歩9分。東急田園都市線で「渋谷」駅には約12分、隣駅の「二子玉川」駅には約2分と主要駅へのアクセスがよいです。また、高速乗り場も近く車での遠出がしやすいのも嬉しいですね。周辺には「都立砧(きぬた)公園」や「JRA馬事公苑」など自然スポットが多く、休日は家族でのお出かけにも最適。買い物施設は、駅直結ビル「世田谷ビジネススクエア」の地下1階にあるスーパーや商店街もあり便利です。
住所
東京都世田谷区用賀
アクセス
「用賀」駅 徒歩9分
「桜新町」駅 徒歩11分
「上野毛」駅 徒歩28分
価格
46,000
万円
間取り
4LDK
専有面積
229.7
㎡
築年月
2009年11月
所在階
1-3階
構造
RC3階建て
総戸数
1戸
備考
駐車場有(2台)
駒場パーク・ホームズ
陽光と機能性を備えた穏やかな住まい
神泉
71.27
㎡
3LDK
15,990
万円
ガレリアコルテ六番町
光とやさしさに包まれるナチュラルレジデンス
四ツ谷
81.36
㎡
3LDK
26,980
万円
フォルム内藤町
新宿御苑ビューを愉しむ、ゆとりの上質空間
新宿御苑前
101.31
㎡
3LDK
39,990
万円
内見動画あり
クレッセント目黒青葉台
毎日を快適に包み込む安心と寛ぎの邸宅
中目黒
86.18
㎡
3LDK
21,490
万円
エス・バイ・エルマンション信濃町
光と風が通る快適リビングの住まい
四ツ谷
69.02
㎡
2LDK+S
12,280
万円
大崎ウエストシティタワーズ
都心を一望、ホテルライクなタワーライフ
大崎
80.8
㎡
3LDK
25,980
万円
ヴァリウス代沢
都会の静寂を享受する低層プレミアムレジデンス
池ノ上
98.03
㎡
3LDK
19,980
万円
サンウッド広尾
東京タワーと緑を望む品格ある住まい
広尾
84.16
㎡
3LDK
41,800
万円
物件をもっとみる
リノベ物件の購入と暮らしのヒント
買ってはいけないリノベマンションの特徴|売却を視野に入れた場合の特徴も紹介
物件購入の基礎知識
資産性
マンションが資産にならない本当の理由|原因はマンションだけじゃない?
物件購入の基礎知識
資産性
外国人が日本で不動産を購入するときの注意点|必要な事前準備も紹介
物件購入の基礎知識
1億円マンションの購入時に必要な費用|費用を抑えるポイントも解説
物件購入の基礎知識
2億円リノベマンション購入でかかる固定資産税・維持費などまとめて紹介
物件購入の基礎知識
リノベーション
個人事業主が住宅ローンを組むためのコツ|審査に落ちるケースや年収条件も解説
物件購入の基礎知識
コラム記事をもっとみる
