この物件は「ご成約済み」です。
後楽園
90.53
㎡
3LDK
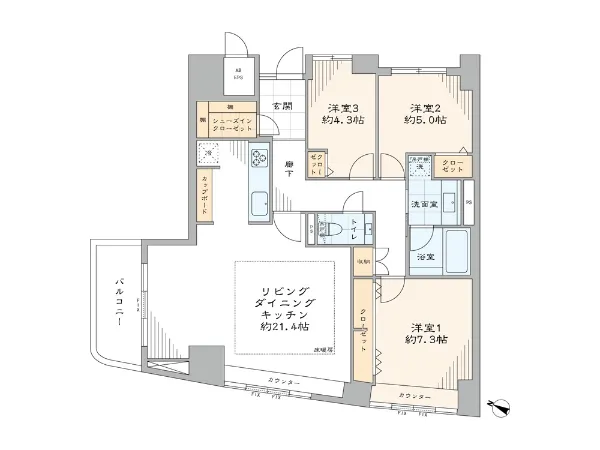
「春日」駅より徒歩6分に佇み、ベージュの落ち着いた外観が印象的な「フォルム小石川」。お部屋は13階に位置する角住戸です。
リビングは約21.4帖の広さがあり、ダイニングテーブルやソファを置いても余裕があります。また、フローリングは床暖房付きで年中快適に過ごせるでしょう。キッチンは白を基調としたスタイリッシュなカップボード付き。収納スペースが充実しているので、美しい状態の居室を保てます。バスルームは木目調のパネルがくつろぎ空間を演出。湯舟に浸り1日の疲れを癒せそうです。



約21.4帖のLDKはナチュラルな色のフローリングとベージュのクロスが、落ち着いて穏やかな時間が流れる空間です。また、2面採光のため外から自然光が入り部屋の隅々まで明るく照らしてくれます。ダイニングテーブルやソファを置いても余裕があり、家族の憩いの場所として、友人の集いの場所として最適です。


白を基調とした清潔感のあるキッチンです。ビルトイン食器洗浄機搭載のため場所を取らず、忙しい朝も快適。また、収納はスライド式で奥にしまい込んだ調理器具等の取り出しもスムーズに行え、調理がはかどりそうです。



約7.3帖の洋室1は2連の収納クローゼットを備えており、洋服をしまい美しい状態を保てるでしょう。洋室3は約4.3帖の広さがあり、子ども部屋や書斎としてもご活用いただけます。


13階に位置するため遮るものがなく、晴れた日は洗濯物がスッキリと乾きやすそうです。また、広がる青空を眺めほっと一息つける時間を過ごせるでしょう。


清潔感のある広々とした玄関。右手には大容量のシューズインクローゼットを完備しているので、キャリーケースやベビーカーなどの収納にも便利です。



白のパネルにブラックのフレームが施されたスタイリッシュな洗面台です。3面鏡の裏と洗面下には収納スペースがあり、散らばりがちなアメニティを収納でき洗面周りをスッキリと保てます。光沢のある木目調パネルのバスルームはワイドミラーを設置し、実際の広さより広く感じられるくつろぎの空間です。


1990年9月築、総戸数106戸、「春日」駅より徒歩6分の立地です。サービスとして宅配預かりサービスやゴミ捨て代行があります。また、建物の1階には24時間営業のスーパーが入っているのでいつでもお買い物に行けて便利。周辺には小中学校が徒歩10分圏内にあり、通学に優しいのも魅力です。
住所
東京都文京区小石川
GoogleMap
アクセス
「春日」駅 徒歩6分
「後楽園」駅 徒歩6分
マンション名
フォルム小石川
ふぉるむこいしかわ
間取り
3LDK
専有面積
90.53
㎡
バルコニー面積
5.47
㎡
築年月
1990年9月
所在階
13階
構造
SRC14階地下2階建
総戸数
106戸
駐車場
空き有
敷地内(40,000円/月)
管理費
30,200円/月
修繕積立金
21,400円/月
駒場パーク・ホームズ
陽光と機能性を備えた穏やかな住まい
神泉
71.27
㎡
3LDK
15,990
万円
ガレリアコルテ六番町
光とやさしさに包まれるナチュラルレジデンス
四ツ谷
81.36
㎡
3LDK
26,980
万円
フォルム内藤町
新宿御苑ビューを愉しむ、ゆとりの上質空間
新宿御苑前
101.31
㎡
3LDK
39,990
万円
内見動画あり
クレッセント目黒青葉台
毎日を快適に包み込む安心と寛ぎの邸宅
中目黒
86.18
㎡
3LDK
21,490
万円
エス・バイ・エルマンション信濃町
光と風が通る快適リビングの住まい
四ツ谷
69.02
㎡
2LDK+S
12,280
万円
大崎ウエストシティタワーズ
都心を一望、ホテルライクなタワーライフ
大崎
80.8
㎡
3LDK
25,980
万円
ヴァリウス代沢
都会の静寂を享受する低層プレミアムレジデンス
池ノ上
98.03
㎡
3LDK
19,980
万円
サンウッド広尾
東京タワーと緑を望む品格ある住まい
広尾
84.16
㎡
3LDK
41,800
万円
物件をもっとみる
リノベ物件の購入と暮らしのヒント
買ってはいけないリノベマンションの特徴|売却を視野に入れた場合の特徴も紹介
物件購入の基礎知識
資産性
マンションが資産にならない本当の理由|原因はマンションだけじゃない?
物件購入の基礎知識
資産性
外国人が日本で不動産を購入するときの注意点|必要な事前準備も紹介
物件購入の基礎知識
1億円マンションの購入時に必要な費用|費用を抑えるポイントも解説
物件購入の基礎知識
2億円リノベマンション購入でかかる固定資産税・維持費などまとめて紹介
物件購入の基礎知識
リノベーション
個人事業主が住宅ローンを組むためのコツ|審査に落ちるケースや年収条件も解説
物件購入の基礎知識
コラム記事をもっとみる
